Vendita €458.000,00 - Appartamento, Residenziale
Agenzia Immobiliare Effetto Casa di via delle Forze Armate 260, prone in vendita nelle immediate vicinanze di Corso Vercelli un bilocale situato al secondo e ultimo piano di un caratteristico stabile di ringhiera dal fascino della vecchia Milano, con servizio di portineria mezza giornata.
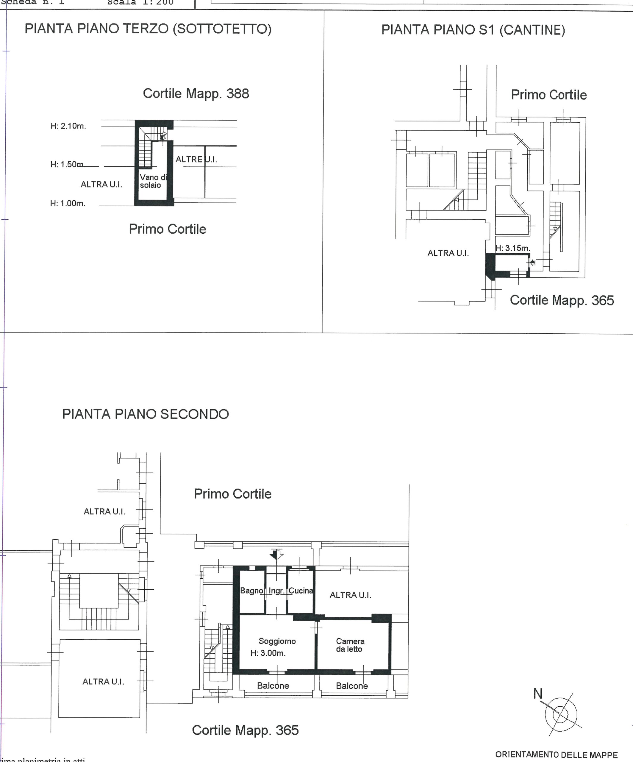
L’appartamento, molto luminoso e silenzioso grazie alla doppia esposizione sui cortili interni, si compone di ingresso privato, zona giorno con cucina a vista e area pranzo, camera da letto matrimoniale e bagno finestrato con box doccia.
La presenza di spazi esterni su entrambi gli affacci rappresenta un valore aggiunto, ideale per momenti di relax.
L’immobile è in buone condizioni interne e presenta parquet in ogni spazio (escluso bagno), doppi vetri e porta blindata.
Riscaldamento e aria condizionata sono autonomi e programmabili. Completano la proprietà cantina, solaio e un ripostiglio-lavanderia ad uso esclusivo adiacente all’appartamento.
L’immobile è collocato in una posizione strategica, ben servita da negozi, servizi e mezzi pubblici, con le linee metropolitane rossa, verde e blu facilmente raggiungibili.
Soluzione ideale sia come abitazione principale sia come investimento.
Libero al rogito euro 458.000, 00































