Vendita €210.000,00 - Appartamento, Residenziale
Agenzia immobiliare effetto Casa di via delle Forze Armate 260, propone in vendita ampio 2 locali con tripla esposizione interna e esterna.
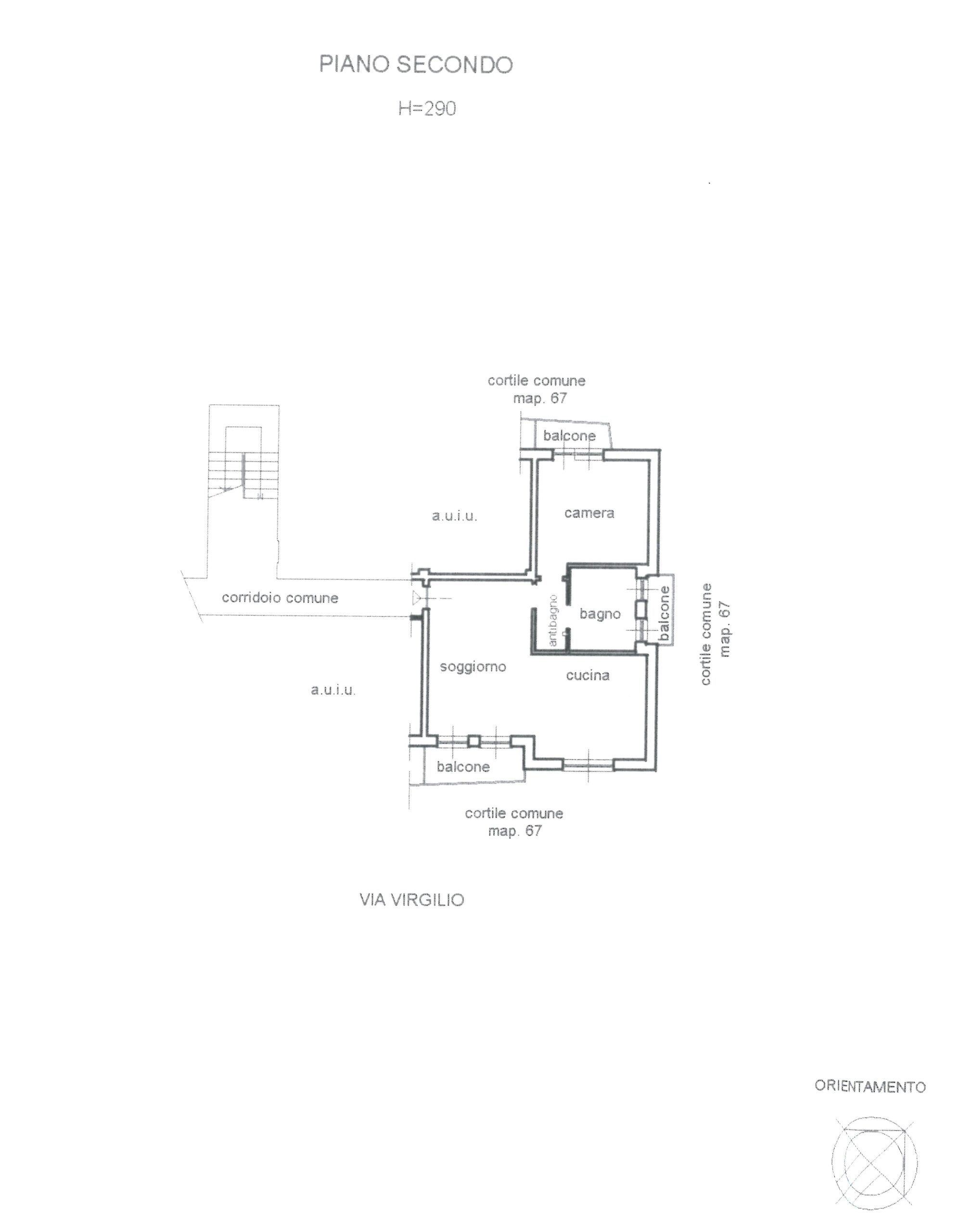
L’appartamento è composta da ingresso, zona living con ampia cucina, camera da letto, bagno, 3 balconi e cantina.
L’interno dell’appartamento si presenta completamente ristrutturato, mentre la facciata è in rifacimento.
Pavimenti in gres porcellanato effetto legno, tranne il bagno dove troviamo l’effetto cemento.
Serramenti in alluminio con doppio vetro.
Tapparelle elettriche.
Aria condizionata.
Impianti certificati.
Porta blindata.
Possibilità arredo
Euro 210.000, 00.





































